Преимущества
Среди основных преимуществ Гринлос Аква 3 можно выделить следующие:
- Малый вес, при большом запасе прочности
- Высокая степень переработки стоков (до 98%)
- Низкий уровень энергопотребления
- Бесшумность при работе
- Благодаря конструктивным особенностям не имеет ограничений по сбросу
- Управление насосами вынесено за пределы станции
- Отсутствие дорогостоящего оборудования внутри станции.
- Не требует постоянного проживания
- Не требует дополнительных навыков при монтаже и обслуживании
- Не требует расходных материалов (биопрепаратов) и регулярного обслуживания (установил – забыл).
Принцип работы
Процесс расщепления и переработки органических загрязнений происходят в результате жизнедеятельности аэробных микроорганизмов, условия для жизнедеятельности которых создает септик Гринлос Аква 3.
Естественный природный процесс оптимизирован путем аэрации стоков и установки биофильтра (специального устройства, на котором образуется биопленка из микроорганизмов).
Создание этих условий требует обособленности процессов, разделения стоков по изолированным резервуарам и их последовательного перетекания.
Станция сконструирована таким образом, что все камеры, в которых происходит отстаивание/разделение и первичное осветление стоков объединены в одном корпусе цилиндрической или овальной формы.
Гринлос Аква 3 изготавливаются из полипропилена чешского производства. Нижний уровень разделен на четыре отсека со специальными технологическими переливами. Перетекая из одного отстойника в другой, стоки проходят первоначальный процесс отстаивания, усреднения стоков, отделения нерастворимых фракций (жиров и т.д.), которые остаются в первом отсеке. При этом уже в первом отсеке начинается очистка стоков свободным активным илом. Затем, из третьего отсека, стоки посредством дренажного насоса подаются на верхний уровень, на специальный разбрызгиватель, через который происходит орошение биофильтра.
В процессе орошения происходит насыщение стоков кислородом, на специальном ворсистом материале, из которого изготовлен биофильтр, развиваются колонии микробов, питательной средой для которых является органика стоков. Форма ворсинок позволяет создать большую площадь для развития микроорганизмов, по сути представляя собой поле фильтрации в «свернутом», компактном виде. Омывая биофильтр, стоки смывают умершие бактерии и обеспечивают зарождающиеся питательной средой.
После биофильтра стоки, обогащенные кислородом и бактериями, возвращаются в первую, вторую и третью камеры. Использование биофильтра помогает избежать образования избыточного количества омертвевшего ила, увеличивает временной интервал между обслуживанием септика. Дренажный насос управляется надежным механическим таймером, включение, как правило, происходит на пятнадцать минут в час. Благодаря регулярной циркуляции стоков, станция не требует постоянного проживания.
Из третьей камеры, после многочисленных циклов очистки, условно чистая техническая вода, через специальный перелив – успокоитель попадает в четвертый, финишный отсек, откуда, в зависимости от модели (самотечная или принудительная) выводится наружу (на грунт, в дренажную или ливневую канаву и т.д.). Благодаря специальной системе переливов активный ил скапливается в первом отсеке.
Монтаж
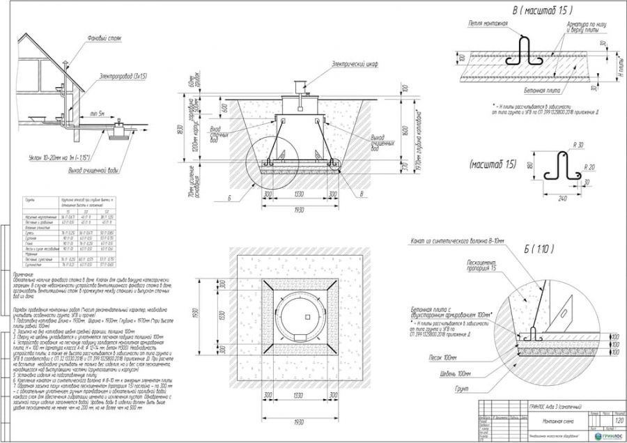
Перед непосредственным монтажом Гринлос Аква 3 специалисты осуществляют подготовку котлована. Его размеры определяются конструктивными особенностями выбранной модели оборудования.
По боковым стенкам корпуса должно быть сохранено свободное расстояние до грунта не менее 250 мм. Дно котлована нуждается в более тщательной подготовке. Его подвергают выравниванию с последующей засыпкой слоем песка, обладающим толщиной в пределах 10-15 см. Пазухи котлована подвергают обратной засыпке при помощи песка, который послойно поливают водой. Прежде чем приступить к аналогичным работам, емкость оборудования на четверть заполняют водой. Впоследствии количество воды внутри емкости увеличивают соразмерно уровню засыпки песком наружных стенок. Каждые 200 мм песка подвергаются ручному уплотнению.
Поверх корпуса оборудования выполняется песчаная обсыпка на высоту 150-300 мм. Для подсоединения оборудования к внутренней канализационной магистрали применяют канализационные трубы, предназначенные для эксплуатации в наружной канализационной системе, обладающие диаметром 110мм.
Уклон труб при создании трубопроводной сети должен неизменно составлять 2,5-3 см на каждый метр расстояния.
Способы отвода очищенной воды
Монтаж с самотечным отводом очищенных сточных вод в дренажную канаву. Подходит для хорошо впитывающих грунтов (песок, супесь) и низком уровне грунтовых вод.
При выборе данного способа водоотведения необходимо обеспечить свободное отведение очищенной воды от выпуска трубопровода, необходимо полностью исключить подтопление выпуска. В противном случае, в летний период, трубопровод будет заиливаться и засоряться, а септик Гринлос Аква 3 будет подвержена обратному затоплению водами с точки сброса. В зимний период, трубопровод и точка сброса будут промерзать. Такие условия работы оборудования приведут к аварии.
Монтаж с отводом очищенных сточных вод в дренажный элемент. Этот вариант позволит в значительной степени сэкономить место на участке, однако дренажный элемент в большей степени подвержен затоплению в условиях подъема грунтовых вод.
Монтаж с отводом очищенных сточных вод в фильтрующий колодец. Подходит для хорошо поглощающих грунтов (песок, супесь) и низком уровне грунтовых вод.
Колодец поглощения может быть выполнен из бетонных колец или при помощи пластикового колодца с перфорированным основанием и стенками. При монтаже колодца поглощения на выпуск трубы рекомендуется смонтировать обратный клапан для защиты Гринлос Аква 3 от обратного затопления в периоды активного снеготаяния или в дождливое межсезонье. Непосредственно под выпуском отводящей трубы, рекомендуется смонтировать аварийный насос, для дополнительной защиты Станции от обратного затопления из колодца поглощения
Обслуживание
Обслуживание септиков Гринлос Аква 3 производится один раз в год по следующему регламенту:
- Перекройте поступающие на очистку стоки.
- Откачайте 2/3 скопившегося осадка со дна и 3 отсеков (ассенизаторской машиной или самостоятельно с помощью дренажного насоса). При этом, если вы откачаете ил целиком из 2 и 3 камер, то станция будет выходить на нормальный режим работы еще несколько недель, поэтому рекомендуется оставлять 20-30% ила.
- Промойте стенки всех камер водой под напором.

